MC 2+1
Kód: 68


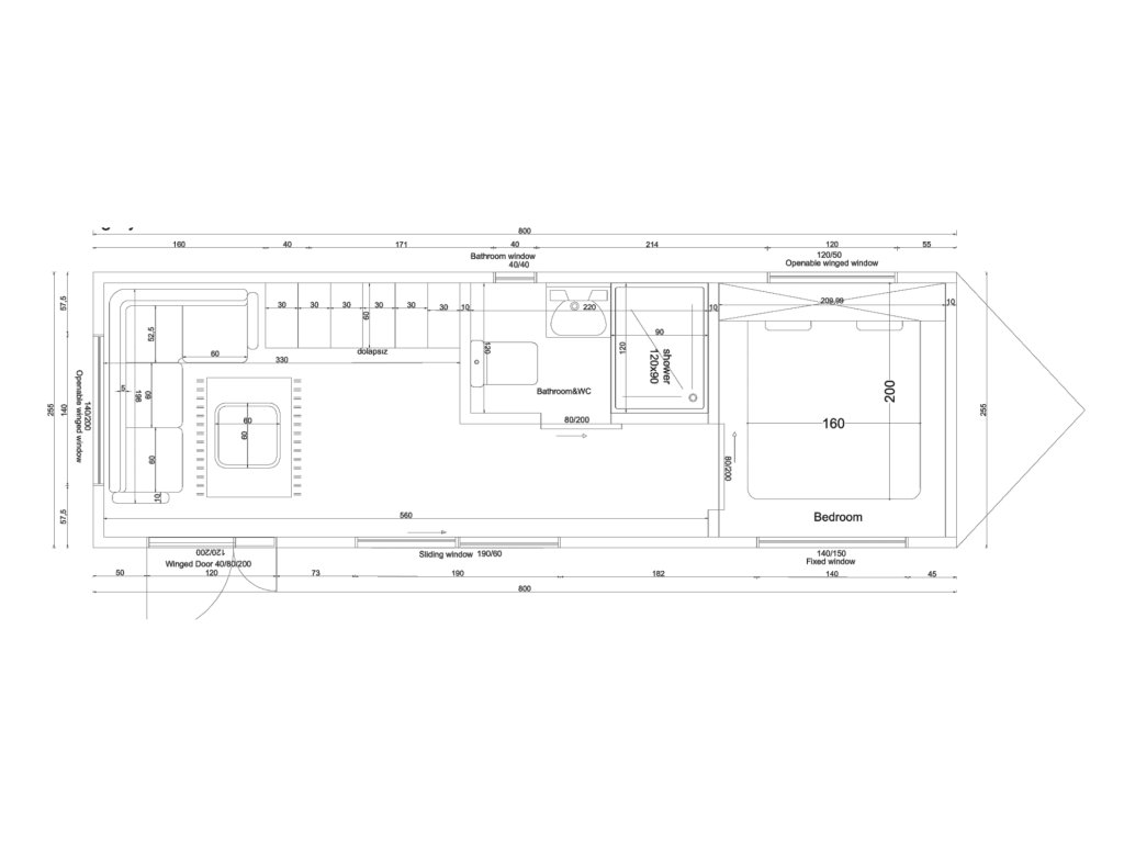
Detailní popis produktu
Technika a vybavení
Přívěs s nosností 3 500 kg + 4 zvedáky + 1 přední opěrné kolo
Skelet z pozinkovaných ocelových profilů
Izolace stěn (10cm): minerální vlna + XPS + bariéra proti vlhkosti + polyuretan a hliníkový kompozit
Vnější obložení z termo dřeva Finská Borovice + Hliníkový kompozit
Interiérová nástěnná svítidla AGT
Podlaha (15cm): překližka + minerální vlna + XPS + polykarbonát + podlahová krytina (PVC/Vinyl)
Střecha (10cm): hliníkový kompozit + minerální vlna + XPS + bariéra proti vlhkosti
Dveře a okna tepelně izolované komfort dvou-sklo, rámy hliníkové/PVC
Vybavení kuchyně: komplet kuchyňská linka (MDF) + dřez + baterie + pracovní deska MDF/Akrylát/přírodní masiv, varná deska (sklokeramika/indukce)
Vybavení koupelny: obklady stěn SPC s různým vzorem + sprchový kout + umyvadlo + baterie + WC + SPC podlaha + koupelnová skříňka
Schodiště do Loftu s vestavěnými skříňkami, LED osvětlení
Kompletní elektrické rozvody a rozvody vody
Příprava pro klimatizaci 12 000 BTU / 18 000 BTU
LED osvětlení interiéru + bodové osvětlení exteriéru
Volitelné vybavení
Terasa a venkovní schody
Dubová krytina na podkrovní schody
Skládací prodlužovací kuchyňská linka
Infrastruktura měděných potrubí pro plynový sporák a Combi
Kamna na dřevo a dvouplášťový komínový systém
Pohovka s funkcí postele
Čelo postele a základna postele s úložným prostorem
Stropní / Nástěnný ventilátor
Klimatizace
Bojler
Standardní a mini chladnička
Pračka
Myčka nádobí
TV
Trouba (LPG/Electric) nebo Mikrovlnná trouba
Interiérové roletky (Plicel)
Síťky proti hmyzu (okna a dveře)
Mechanické Vybavení / ON-GRID
Off-Grid Vybavení
200 l nádrž na čistou vodu, 200 l šedá nádrž na vodu (alternativní nádrže na 400 l)
Vypouštěcí systém pro nádrže
WC Chemické kazetové Thetford / Spalovací (elektrické/plynové)
12-voltový elektrický posilovací systém (volitelné)
Solární systém s měničem ( 3kWh)
Sporák a infrastruktura na LPG
Bez halogenový 12V a 220V elektrický systém
Ovládací panel digitální domácnosti
Sada spínače, zásuvky a usměrňovače
LPG systém ohřívání prostoru a vody
Poznámka: Rozsah systému Off-Grid se může lišit podle potřeb.
